Твердотопливный напольный чугунный котел Sime серии Solida
Sime Solida - чугунный котел на твердом топливе только для отопления.
Решение энергетических проблем
Котел Solida (Солида) был разработан Sime (Симе) для централизованного отопления и может работать на угле и дровах. Котлы Solida могут также быть переведены на нефть и газ при потребности. Научно-исследовательская команда Sime всегда уделяет первостепенное значение к эффективности использования энергии и недавно начала выпуск котлов отвечающим совершенно новым требованиям для альтернативных источников энергии.
Твердотопливные котлы Solida представлены в шести моделях, мощностью от 16.3 до 39.5 кВт и как все оборудования Sime, подвергнутые полному и строгому лабораторному испытанию и проверке качества изготовления.
.jpg)
Чугунная душа
Чугун является сплавом, долго сохраняющим свои свойства, неподдающимся износу и ставшим синонимом надежности и простоты ухода.
Структура секций приводит к отличным результатам горения с пониженным выводом вредных газов в окружающую среду.
Такой эффект достигнут блягодаря многолетниму опыту Sime в проектировке и производстве чугунных теплообменников.
Преимущества котлов Sime Solida:
- сбалансированное сгорание твёрдого топлива;
- низкая эмиссия газов;
- эффективная теплоизоляция на невоспламеняющейся алюминиевой основе;
- большие двери для загрузки топлива;
- надёжность, долгий срок службы;
- простота обслуживания.
.jpg)
Высокая теплоотдача
Форма и размеры камеры сгорания котлов Solida позволяют достичь высокой теплоотдачи и безотходного процесса горения. Отличная изоляция котла гарантирована соответсвующей изоляцией чугунного корпуса, обвернутого в насыщенный и толстый матрас из стекловаты.
Простота и надежность
Широкая дверца Solida предрасполагает к простоте загрузки и чистки котла. Через эту дверцу предусмотрен легкий доступ к камере сгорания и к поддону сбора золы.
Устройство дымовой тяги включает средство ее регулировки, облегчающее начальное введение в эксплуатацию котла.
В зависимости от желаемой температуры с помощью специального устройства, открывающего дверцу, регулируется подача воздуха, необходимого для процеса горения.
Одной из опций котлов Solida является передвижная решетка для прямого сброса золы в поддон. В результате движения решетки через ее отверстия зола падает в поддон, овобождая, таким образом, место в камере сгорания для усиления пламени.
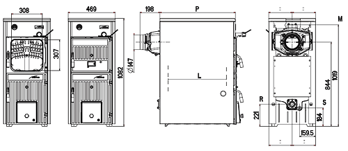
Технические характеристики котлов Sime Solida
| Технические характеристики | Sime Solida 3 | Sime Solida 4 | Sime Solida 5 | Sime Solida 6 | Sime Solida 7 | Sime Solida 8 |
|---|---|---|---|---|---|---|
| Тепловая мощность (уголь), кВт (кКал/ч)* | 16,3 (14.000) | 20,9 (18.000) | 25,6 (22.000) | 30,2 (26.000) | 34,9 (30.000) | 39,5 (34.000) |
| Работа на угле | ||||||
| Продолжительность одной загрузки, ч |
2 | 2 | 2 | 2 | 2 | 2 |
| Объем загрузки, дм3 | 17,0 | 25,5 | 34,0 | 42,5 | 51,0 | 59,5 |
| Минимальная депрессия дымохода, мбар | 0,08 | 0,10 | 0,12 | 0,13 | 0,15 | 0,18 |
| Габариты |
||||||
| P (глубина), мм | 355 | 455 | 555 | 655 | 755 | 855 |
| L (глубина камеры сгорания), мм |
190 | 290 | 390 | 490 | 590 | 690 |
| Чугунные секции, № | 3 | 4 | 5 | 6 | 7 | 8 |
| Максимальное рабочее давление, бар |
4 | 4 | 4 | 4 | 4 | 4 |
| Давление во время испытаний, бар |
6 | 6 | 6 | 6 | 6 | 6 |
| Объем котла, л |
23 | 27 | 31 | 35 | 39 | 43 |
| Потеря нагрузки со стороны воды, мбар |
12 | 17 | 26 | 29 | 34 | 40 |
| Вес, кг |
190 | 225 | 270 | 310 | 345 | 385 |
* При работе на жестких породах дерева (береза, дуб, оливковое дерево) теплоотдача снижается приблизительно на 10%.
Размеры и гидравлические подключения котлов Sime Solida
Гидравлические подключения котлов Sime Solida
| Соединения | Размер |
|---|---|
| M - подача под давлением | 2” |
| R - обратный ход | 2” |
| S - слив | 1/2” |
Инструкция по установке и эксплуатации котла Sime серии SOLIDA (*.pdf 479,0 Kb)
Перечень и описание запчастей для котла Sime серии SOLIDA (*.rar 512,0 Kb)

